Avenida Maria Rosa, S/N, Manaíra, João Pessoa, PB, 58038-460
Quartos
1, 2 ou 3
Garagem
1
Área
38 a 81m²
Sobre o empreendimento
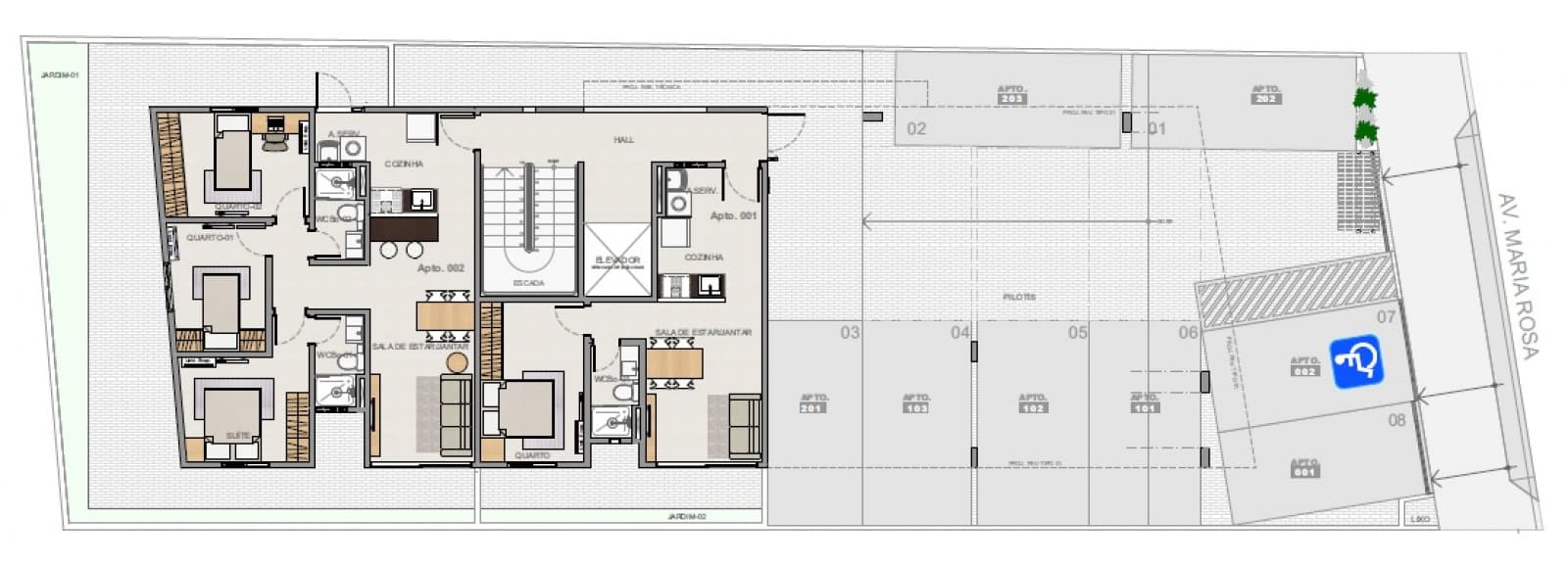
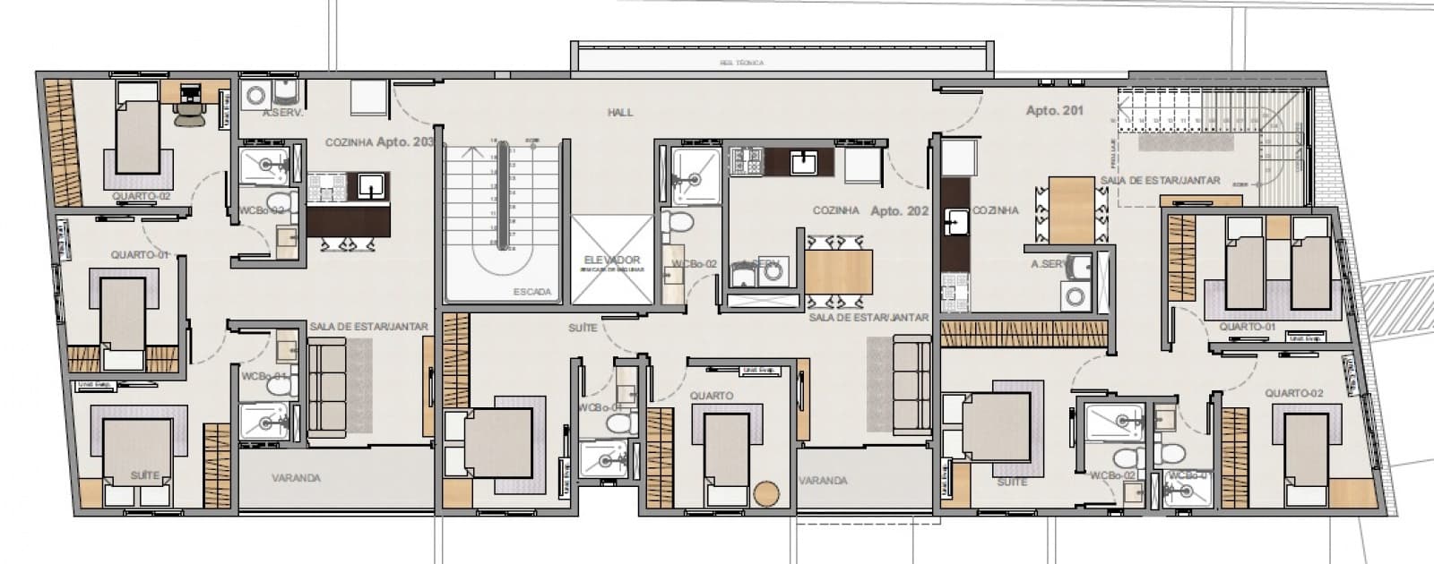
Manaíra House é um empreendimento personalizado para cada família. O prédio dispõe de várias opções de plantas, o que torna singular a experiência de viver na praia. Alinhado às necessidades da vida moderna, o empreendimento conta com áreas comuns e privativas, proporcionando conforto e segurança para seus moradores.
RI - R-18-3.384
Infraestrutura
Churrasqueira
Espaço gourmet
Piscina
Água e gás individualizados
Galeria
Plantas
Estágio da obra
Alvenaria
100%
Estrutura
100%
Fachada
100%
Forro
100%
Fundações
100%
Instalações
100%
Pintura
100%
Portas e janelas
100%
Revestimento
100%










